Vragen of afspraak maken?

Stuur ons een bericht op Whatsapp

Hart Nibbrigkade 94 ‘s-Gravenhage

Specificaties

Vraagprijs: € 650.000 k.k.

  • Postcode: 2597 XX
  • Woonoppervlakte: 120 m2
  • Inhoud: 426 m3
  • Bouwjaar: 1933

Terug naar het overzicht

Omschrijving

Uitmuntend onderhouden ruim dubbelbovenhuis met karakter in het geliefde Benoordenhout.

In het hart van het gewilde Benoordenhout bevindt zich deze ruime dubbele bovenwoning met drie slaapkamers en een heerlijk zonnig balkon met uitzicht op de groene binnentuinen. Een woning met karakter, sfeer en volop authentieke details! Na toestemming VVE en vergunning van de gemeente biedt het appartement tevens de mogelijkheid een dakterras aan te leggen.

Binnen treft u prachtige glas-in-lood schuifseparaties, fraaie houten vloeren en hoge plafonds die samen zorgen voor een lichte en aangename woonbeleving. De woonkamer en suite biedt ruimte en charme, terwijl de goed ingedeelde keuken en de drie volwaardige slaapkamers zorgen voor optimaal wooncomfort.

Vanaf het balkon geniet u van de rust en het uitzicht over het groen — een oase van stilte midden in de stad.

De ligging is ideaal: om de hoek van de Breinerlaan en vlak bij de Van Hoytemastraat, met haar exclusieve winkels, speciaalzaken en gezellige restaurants. Ook parken zoals de groene parel van het Benoordenhout “Park Clingendael (bekend om haar Japanse tuin), scholen en sportfaciliteiten liggen binnen handbereik. De binnenstad, duinen en het strand zijn prima per fiets of openbaar vervoer snel te bereiken. Ook de uitgangswegen richting de diverse snelwegen liggen in de directe nabijheid.

Kortom: een sfeervolle, ademende woning met originele details en een geweldige ligging in één van de mooiste wijken van Den Haag.

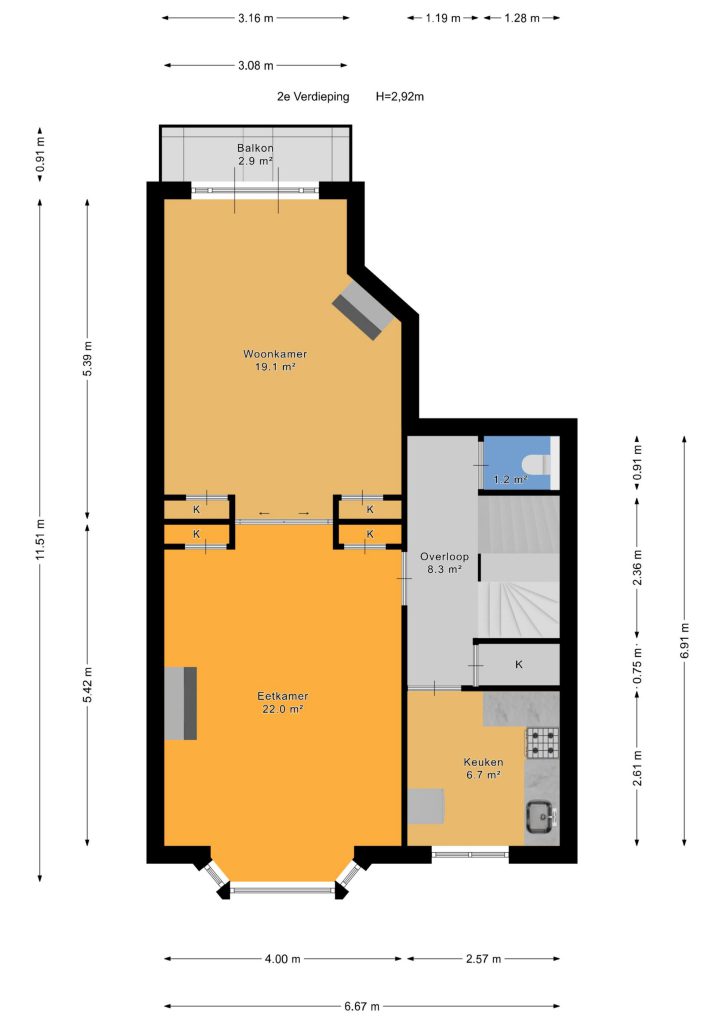
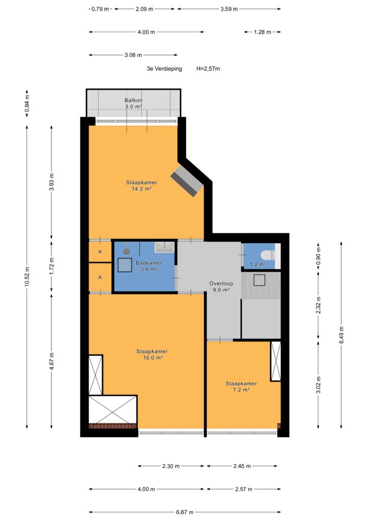
Indeling:
Begane grond:
Entree op straatniveau met meterkast.
1e etage: Overloop met modern wc en vaste kast.
Aan de voorzijde bevindt zich de keuken met moderne keukenopstelling (2020) en voorzien van diverse inbouwapparatuur waaronder een vrijstaand gasfornuis met oven, vaatwasser en afzuigkap. Royale en lichte woonkamer en suite met glas in lood suiteseparatie en vaste kasten. De woonkamer is aan de voorzijde voorzien van een erker en marmeren schouw. De eetkamer is tevens uitgevoerd met een schouw en biedt daarnaast toegang tot het balkon.

2e etage:
Royale overloop met wc.
Twee riante slaapkamers aan de voorzijde en een slaapkamer aan de achterzijde tevens voorzien van toegang tot het balkon.
De moderne tussengelegen badkamer is voorzien van inloopdouche en een wastafelmeubel.

Bijzonderheden.
Woonoppervlak 120m2
Fraaie houten vloeren
Mogelijikheid tot het realiseren van een dakterras (na aanvragen vergunning en toestemming VVE)
Veel originele details
Badkamer, keuken en kozijnen ( op de kozijnen op de 1ste etage aan de voorzijde na) zijn vernieuwd.
In 2020 zijn de wanden gestuukt en is de elektra aangepast.
Gelegen op eigen grond
Ouderdom en milieu clausule van toepassing.
Gelegen in een Rijksbeschermd stadsgezicht
Actieve VVE: maandelijkse bijdrage € 198,-
Energielabel D
Winkels, openbaar vervoer en uitvalswegen om de hoek
Verkoopvoorwaarden van toepassing

“Zien is geloven – deze woning straalt meer uit dan woorden kunnen vangen.” Plan vandaag nog uw bezichtiging!!

Schakel bij voorkeur uw eigen NVM-aankoopmakelaar in. Uw NVM-aankoopmakelaar komt op voor uw belang en bespaart u tijd, geld en zorgen.

“Deze informatie is door ons met de hoogst nodige zorgvuldigheid samengesteld. Door ons kantoor wordt echter geen enkele aansprakelijkheid aanvaard voor enige onvolledigheid, onjuistheid of anderszins, dan wel de gevolgen daarvan. Alle opgegeven maten en oppervlakten zijn indicatief.”.

Locatie

Je gebruikt een verouderde webbrowser

Deze website maakt gebruik van moderne technieken die niet worden ondersteund door jouw webbrowser. Update mijn webbrowser

×